Hoppa till innehåll
 
Hyra: 10 000 kr/mån
Vill du veta mer om bostaden?
Vad kostar boendet? Räkna på din månadskostnad
Mika Lappalainen, Mäklare Svensk Fastighetsförmedling
Ansvarig mäklare
Mika Lappalainen
Franchisetagare, Fastighetsmäklare Certifierad nyproduktion
Vad kostar boendet? Räkna på din månadskostnad
Värnamo

Kävsjövägen 45

Hyra: 10 000 kr/mån
Vill du veta mer om bostaden?
Vad kostar boendet? Räkna på din månadskostnad
Mika Lappalainen, Mäklare Svensk Fastighetsförmedling
Ansvarig mäklare
Mika Lappalainen
Franchisetagare, Fastighetsmäklare Certifierad nyproduktion
Vad kostar boendet? Räkna på din månadskostnad

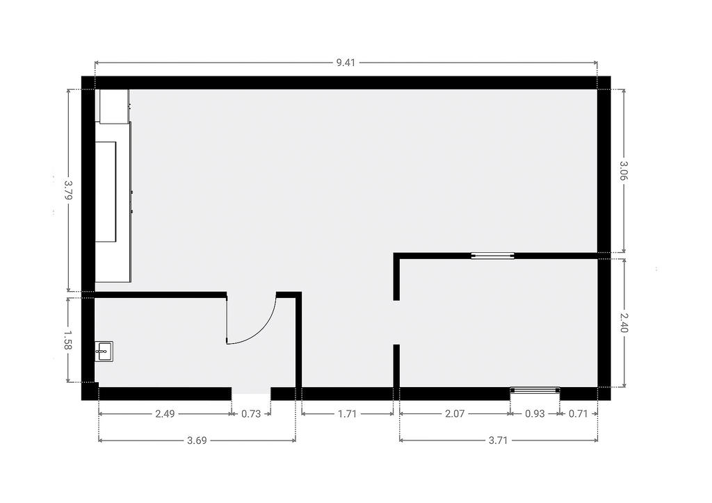
Lokal om 60 kvm med stora parkeringsmöjligheter uthyres

  • Typ: Lokaluthyrning
  • Rum: 1
  • Tomtarea: 5 117 m2
  • Area: 60 m2
  • Våning: 1 av 1

Nu finns möjlighet att hyra en välplanerad lokal på ca 60kvm,
Lokalen passar utmärkt för dig som söker praktiska ytor för serviceverksamhet, bilrekond, mindre verkstad. taxi/bussverksamhet eller annan rörelse som kräver enkel åtkomst och bra parkeringsmöjligheter.

Läget är mycket bra - fastigheten ligger vid gröndalsleden med snabb anslutning till både E4an och väg 127, vilket ger smidig access för både kunder och transporter.

Hyra och tillträde enligt överenskommelse.

Om Fastigheten

Sammanfattning

Typ: Lokaluthyrning
Rum: 1
Tomtarea: 5 117 m2
Hyra: 10 000 kr/månad
Våning: 1 av 1
Area: 60 m2

Allmänt

Län: Jönköping
Kommun: Värnamo
Fastighetsbeteckning: VÄRNAMO MÅRDEN 1

Planbestämmelser

Västhorja 12:1 i värnamo, Detaljplan (Beslutsdatum: 2004-11-25, Registreringsdatum: 2005-08-22, Senast ändrad: 2022-11-29)

Övriga rättigheter och belastningar

Inskrivna övriga rättigheter och belastningar: Ljusseveka, Vattenskyddsområde (Beslutsdatum: 1986-12-03, Registreringsdatum: 2006-02-16, Senast ändrad: 2024-11-22)
Rättigheter last: Avtalsservitut: DAGVATTENDIKE - SE BESKRIVNING
Officialservitut: TRÄDSÄKRING

Ekonomi

Hyra

10 000 kr/mån
Moms: Tillkommer

Summa hyra och kostnader

10 000 kr/mån

Utöver ovanstående eventuella driftkostnader tillkommer fastighetsavgift med belopp om 20 305 kr.

Taxering

Byggnad: 3 140 000 kr
Mark: 921 000 kr
Totalt: 4 061 000 kr
Taxeringsår: 2025
Taxeringsvärdet är: Fastställt

Pantbrev

Det finns 3 pantbrev uttaget om sammanlagt 6 000 000 kr.

Alla bilder

+ 19 Visa alla 25 bilder
 

Karta och område

Kävsjövägen 45, Värnamo

Intresseformulär

Fyll i formuläret så kontaktar vi dig inom kort.

Kontaktuppgifter
Vänligen ange förnamn
Vänligen ange efternamn
Vänligen ange telefonnummer
Vänligen ange e-post
500 tecken kvar
Har du lånelöfte?*
Vill du ha hjälp med lånelöfte?
Vill du få nyheter och erbjudanden?

Oj, något gick fel! Försök igen. 

Ett ögonblick!
Tack, dina uppgifter är sparade!
Du fyllde inte i någon e-postadress. Ange den nedan för att inte missa någon information.
 
 
 
Ta del av vår integritetspolicy
 
 
 

Liknande bostäder till salu

Värnamo
Kävsjövägen 45
Dela bostad: Dela på Facebook Dela med epost Dela med sms Kopiera länk Länken kopierad

Planritning